KITA MÖRSCHWILL

Jahr: 2023
Ort: Mörschwill / CH 
Nutzung: Kindertagesstätte
Typ: offener Wettbewerb


Das Gebäude setzt mit seinem Konzept auf ein zeitgemässes Verständnis des Begriffes Nachhaltigkeit und knüpft damit an die vom Auslober beschriebene Idee des Hauses an, nämlich ein Gerüst zu bilden, das über Dauer mehrere Funktionen aufnehmen und sich adaptieren kann. Dieses Gerüst ist beinah wortwörtlich zu verstehen, da ein Exoskelett als schlanke Stahlbetonstruktur das Gebäude trägt und gliedert, Fassade und innere Aufteilung sich jedoch über im besten Fall Jahrhunderte wandeln und anpassen können.

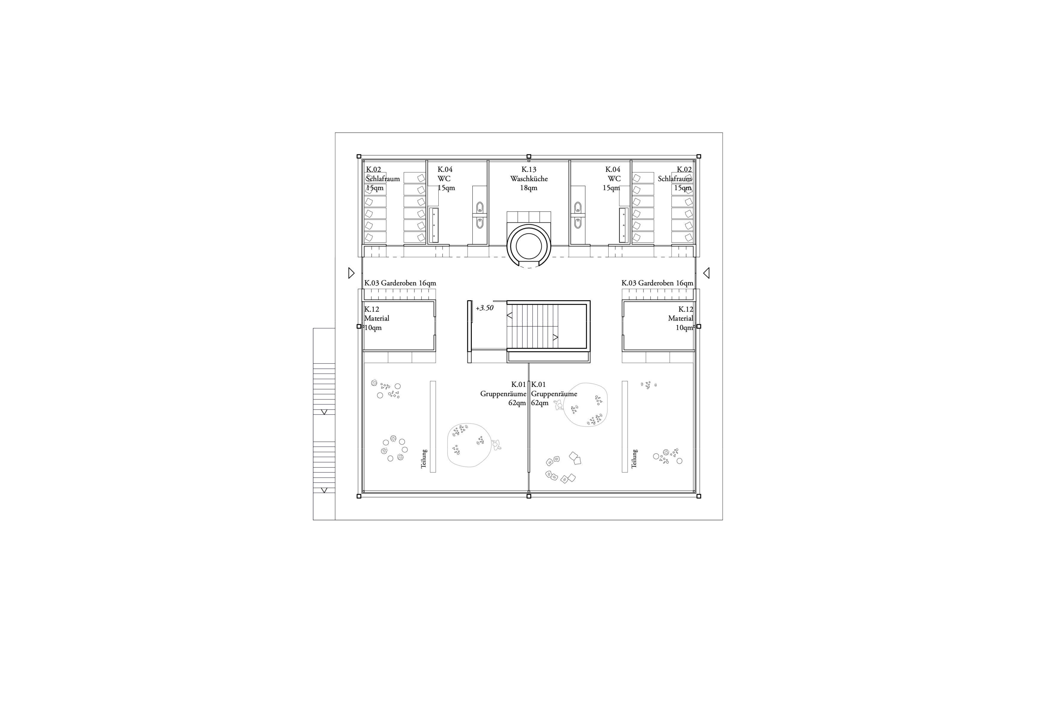
Der Baukörper gliedert sich in drei Geschosse und eine Dachterrasse und fügt sich angemessen in die Topographie ein. Durch geringe Geländemodellierung gelingt es, den Höhenversatz für das Gartengeschoss auszubilden und so zwei ebenerdige Geschosse anzubieten. Das Eingangsgeschoss liegt dabei in der Mitte. Direkt an das grosszügige Entree anknüpfend sind die Personal- und Leitungsräume angeordnet. Wie in den übrigen Geschossen sind im Süden die grossen Raumbereiche untergebracht. Im EG sind dies das Atelier und die Essensräume. Diese können auch für Abendveranstaltungen der Gemeinde zur Verfügung stehen.

Das Gartengeschoss und Obergeschoss sind identisch aufgebaut und beherbergen jeweils die Räume zweier Gruppen. Über die Treppe erreicht man einen durchgesteckten Flurraum, in dem sich an den Enden die Garderoben befinden. Nördlich anschliessend sind die Sanitär- und Schlafräume mit mittigem Nebenraum angeordnet. Im Süden befinden sich die Gruppenräume, die sich in jeweils in zwei Raumbereiche teilen, jedoch auch zu einem grossen Raum zusammengeschaltet werden können. In jedem Geschoss befinden sich zudem Materialräume.

Gestaltprägend für die Erscheinung des Gebäudes sind die auskragenden Decken, die einen umlaufenden Balkon als Freibereich anbieten. Eine Aussentreppe erlaubt einen direkten Zugang aus den Garderoben ins Freie, sodass bei schlechtem Wetter das innere Treppenhaus als Finkentreppenraum verwendet werden könnte. Zudem erlaubt die Aussentreppe eine externe Benutzung eines Gruppenraumes, ohne Kreuzungen im Gebäude zu verursachen.