WOHNUNGSBAU MOOSACH

Jahr: 2023
Ort: Moosach / DE 
Nutzung: Wohnungsbau
Typ: nichtoffener Wettbewerb
mit OK LANDSCHAFT


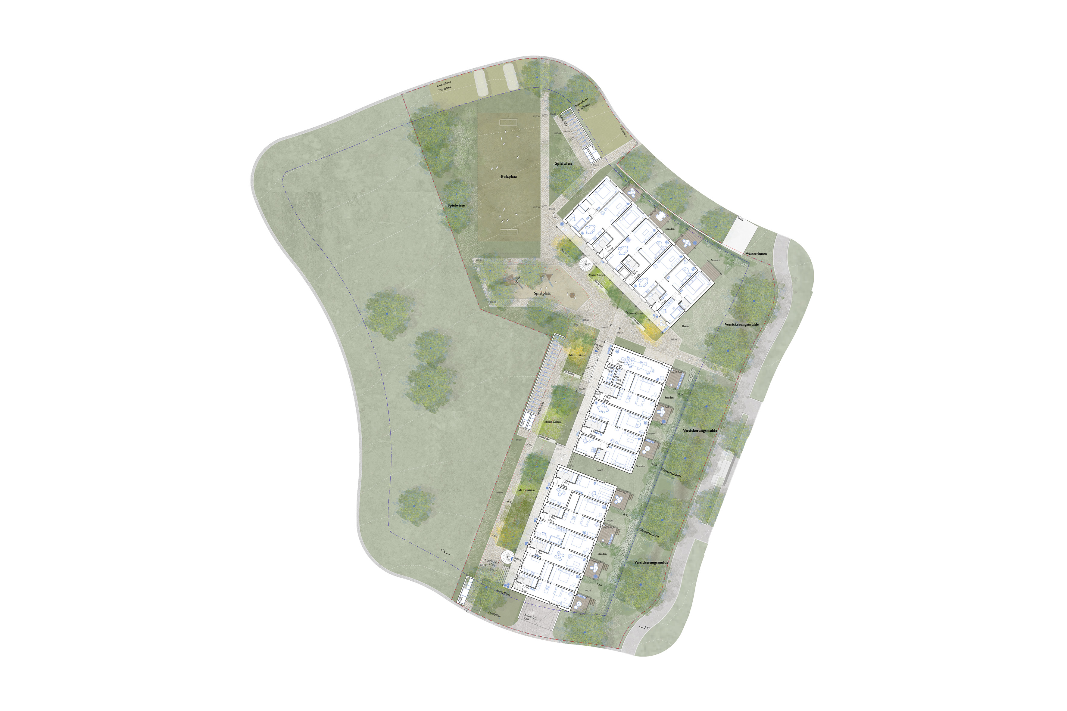
Im Spannungsraum zwischen Kleinteiligkeit und Zusammenhang bildet der Entwurf ein eigenständiges Ensemble. Wie an einer Perlenschnur aufgefädelt, verbinden sich die Baukörper über ein Rückgrat an Erschließung, dem es trotz langgestrecktem Grundstück gelingt ein gemeinsames Miteinander zu bilden.

Die Setzung des ersten Bauabschnittes besetzt den Bereich der Dorfstraße und bildet hier für das neue Wohngebiet ein Gesicht. Dem Ortsbild folgend wird der Wechsel aus Trauf- und Giebelständigkeit aufgenommen und bewusst eingesetzt. Durch die Rotation des 3. Baukörpers wird ein Durchgang aufgespannt, über den der Fußgänger das Ensemble betritt. Dieser wird über die überspannende Laubengangerschließung gerahmt. Darüber hinaus gelingt es so einen rückwärtigen Platzraum zu schaffen, der Begegnungs- und Treffort wird. Hier bündeln sich neben gemeinschaftlichen Einrichtungen wie Spielplatz und Gemeinschaftsraum auch die Haupterschließungselemente von Treppe und Aufzug.

Die freibleibende Fläche des 2. Bauabschnittes liegt angrenzend zum Kindergarten und bindet an das neue Quartier an. Wir schlagen vor, hier einen Bolz- und Spielplatz eingebunden ins Grün anzubinden und für alle Anwohner zu öffnen. Der Fußabdruck der Sportfläche wird von Baumpflanzungen freigehalten, um bei Bau des 2. Bauabschnittes keinen Baum fällen zu müssen. Müll und Fahrräder sind dezentral organisiert. Die schlanken Baukörper fassen die Zugänge und bilden kleine Raumkanten.